Prédio Monousuário
Rua Bela CintraConsolação, São Paulo - SP

Informações
- Nº de Andares: 15
Medidas
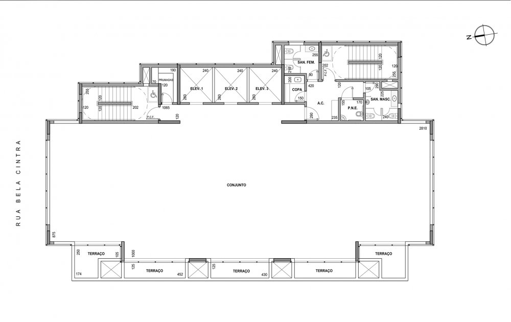
- Área Construída: 4.427 m²
Descrição
Único edifício corporativo novo na região da Av. Paulista para locação monousuário, primeira locação, alto padrão. São 4.427m² de área útil distribuídos em 15 andares com lajes de 290m², 128 vagas de garagem, próximo as estações de Metrô Paulista e Consolação.
- Novo e sem uso, edificado especificamente para empresa monousuário;
- Lajes em vão livre, atende a qualquer layout;
- Ar Condicionado Central VRV, maior economia de energia, conforto ao usuário e facilidade de operação e manutenção;
- Forro mineral modular com propriedades acústicas e térmicas, permite mobilidade do ar condicionado e luminárias
- Sprinkler e detectores de fumaça;
- 02 escadas de incêndio;
- Luminárias tubo LED, Maior economia de energia, durabilidade e luminosidade em comparação as lâmpadas fluorescentes;
- Piso elevado com chapas de aço;
- Copa, wc masculino, feminino e necessidades especiais em todos andares, inclusive no térreo (não computados na área privativa):
- 03 elevadores Atlas com profundidade para cama leito, altura de 03 metros, porta dupla, com acessibilidade e capacidade para 17 pessoas cada elevador, corrente alternada com tensão 380V (maior economia de energia);
- Gerador Stemac com 220 KVA que atende os 3 elevadores e áreas comuns;
- 02 câmaras transformadoras reticuladas com capacidade de 1.000 KVA cada uma;
- Energia de baixa tensão com rede reticulada e tarifa de média tensão;
- Área para recepção e instalação de controle de acesso.
- 128 vagas de garagem distribuídas em 3 subsolos;
- 50 banheiros
O que tem perto?
- Açougue, Feiras e Supermercados
- Baladas
- Bancos
- Comércio
- Escolas Particulares
- Escolas Públicas
- Faculdade
- Farmácia
- Hospital
- Metrô
- Parque
- Ponto de Oníbus
- Ponto de táxi
- Posto de Gasolina
- Posto de Saúde
- Restaurantes
- Shopping















